Best House Design Plans & Home Design Services India|My House Maps
Ask a Question

How can I get sample 3 BHK indian type house plans?

  • 30ft x 45ft
  • 1350 Sqft
  • WW Facing House Plan

How much does an Indian architect charge on an average for a house plan of 30x45? What is included?

  • 30ft x 45ft
  • 1350 Sqft
  • NN Facing House Plan

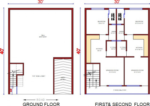
Whats the best possible structure to build a house in 1200 square feet?

  • 30ft x 40ft
  • 1200 Sqft
  • EE Facing House Plan

What are the most creative homes built in a 30*45 (1350 square feet) area?

  • 30ft x 45ft
  • 1350 Sqft
  • WW Facing House Plan

How much it should cost to get home elevation & floor plan designs for double story 1200 sq ft small home design?

  • 30ft x 40ft
  • 1200 Sqft
  • NN Facing House Plan

Can a duplex house be built on an 30x40 feet, East plot? I need advice for construction.

  • 30ft x 40ft
  • 1200 Sqft
  • EE Facing House Plan